Description
Zeer sfeervolle en karakteristieke tussenwoning midden in het bruisende Oud Oegstgeest. De Terweeweg is een voormalige dorpsweg en vormt samen met de Kempenaerstraat het levendige middelpunt van het oude dorp met de winkels, delicatessenzaken en terrassen.
Verder zijn op loop-/fietsafstand voetbal-, hockey- en tennisvelden, Kasteel Endegeest, het Centraal Station Leiden, diverse ziekenhuizen, verschillende basis- en (internationale) middelbare scholen en binnen 10 minuten fietsen bent u in het historische centrum van Leiden. Door de centrale ligging zit u ook snel op de A44 richting Schiphol, Amsterdam of Den Haag. De stranden van Katwijk, Noordwijk en Wassenaar zijn binnen een kwartier aan te rijden.
Layout
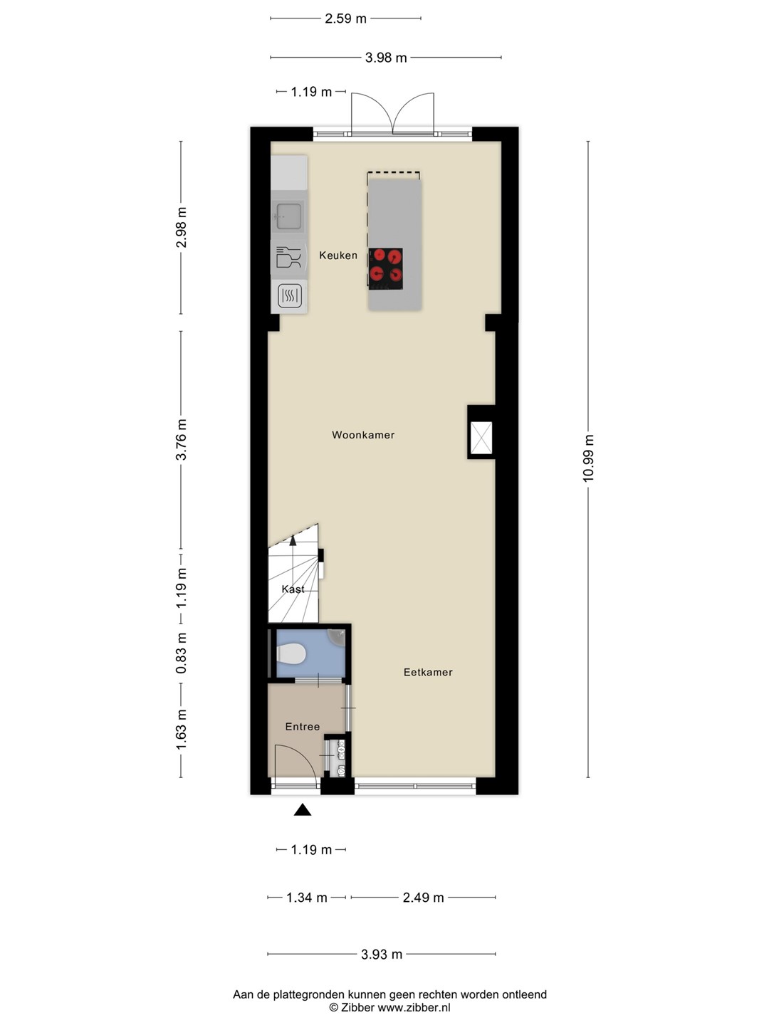
Entree, kleine hal met meterkast en modern toilet met fonteintje. Sfeervolle woonkamer met open haard, handige trapkast, hoog plafond en aan de voorzijde fraaie glas-in-loodramen. De hele woonkamer is voorzien van houten vloerdelen. Aan de achterzijde is de moderne keuken (2021) met kookeiland en via de openslaande deuren komt uw in de knusse tuin. De keuken heeft enkele op maatgemaakte kasten en is onder andere voorzien van een inductie kookplaat (Bora), oven, Quooker, vaatwasser en koel-vriescombinatie.
First floor
Overloop met luik naar bergvliering. De slaapkamer aan de voorzijde ligt over de gehele breedte van het huis en heeft een opmaatgemaakte inbouwkast. De tweede slaapkamer ligt aan de achterzijde en is ook over de gehele breedte van het huis. Tussen de slaapkamers in zit een moderne badkamer. Deze badkamer beschikt over een sfeervolle tegelvloer, een inloopdouche, wastafel met meubel en een toilet. Verder zijn in de badkamer ook de aansluitingen voor de wasmachine en droger. Op de praktische bergvliering zit de cv-ketel (2020) en de mechanische ventilatie.
Garden
In de voortuin -met voldoende plek om een (bak)fiets te stallen- kunt u aangenaam genieten van de avondzon, terwijl u in de achtertuin juist heerlijk in het ochtendzonnetje een kopje koffie kunt drinken, maar ook 's avonds is het hier goed toeven, want voor een gezellig borreltje of hapje eten kunt u lekker zitten op de veranda en als het wat frisser wordt steekt u de buitenhaard aan. Ook is er een achterom aanwezig.
Details
- Gebruiksoppervlakte wonen 74 m²
- Overige inpandige ruimte 3 m²
- Gebouw gebonden buitenruimte 0 m²
- Externe bergruimte 0 m²
- Perceeloppervlakte 91 m²
- Bruto inhoud woning 271 m³
- Centrale ligging
- Energielabel C
- Nagenoeg volledig dubbelglas en anders voorzetramen
- Woning is in 2020/2021 gerenoveerd en onder andere voorzien van een nieuwe badkamer, keuken, elektra en uitbouw
- Sfeervolle veranda met buitenhaard
- De situatie met de achteringang zal nog (door en voor rekening van verkoper) worden gewijzigd, met dien verstande dat er wel een achterom zal blijven.
- Oplevering in overleg
Koopakte
- voor woningen ouder dan 30 jaar is de ouderdoms en materiaalclausule van toepassing
- voor woningen gebouwd voor 1993 is de asbestclausule van toepassing