Beschrijving
Charmant en karakteristiek herenhuis met vijf slaapkamers, hobbykamer en woonkeuken gelegen aan een fraaie brede laan in het oude gedeelte van Oegstgeest.
De Marelaan is een groene en kindvriendelijke laan. Parkeren kan hier altijd voor de deur, wat uniek is in dit deel van Oegstgeest. De woning ligt vlakbij park "De Leidse Hout", op loopafstand van scholen, sportvelden (o.a. hockey, tennis en voetbal), winkelcentra (Lange Voort en De Kempenaerstraat) en openbaar vervoer. Ook diverse jachthavens liggen op loopafstand, waardoor u de Kagerplassen en de binnenstad van Leiden eenvoudig per boot kunt bereiken. Het gezellige historische centrum van Leiden, ziekenhuizen (Alrijne en LUMC) en het centraal station van Leiden zijn op fietsafstand. Ook is de woning gunstig gesitueerd ten opzichte van uitvalswegen N-206 en A-44 en door de Rijnlandroute is de A4 ook goed bereikbaar geworden.
Indeling
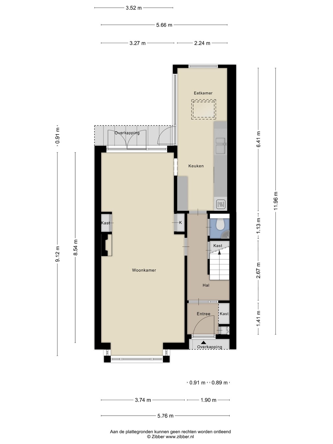
Entree, hal met meterkast en garderobe, gang met trapkast en toilet met fonteintje. Via de hal is er toegang naar de woonkamer en als u rechtdoor loopt komt u in de keuken. De woonkamer heeft een erker aan de voorzijde, mooie parketvloer, open haard en openslaande deuren naar de achtertuin. Vanuit de woonkamer is ook een doorgang naar de keuken. De lichte -door de vele raampartijen en lichtkoepel- woonkeuken is voorzien van diverse (inbouw)apparatuur zoals vaatwasser, oven en inductiekookplaat. Doordat de keuken ooit is uitgebouwd is er nu ook voldoende ruimte om hier een eethoek te creëren.
Eerste verdieping
Overloop. Op deze verdieping zijn drie goed formaat slaapkamers. Twee slaapkamers beschikken over een inbouwkast en één slaapkamer aan de achterzijde heeft ook nog openslaande deuren naar het balkon. Verder is er op deze verdieping een badkamer met douche, ligbad, toilet en wastafel met meubel. Grappig detail is de aparte deur naar de kamer aan de voorzijde.
Tweede verdieping
Overloop, hier bevindt zich een handige wastafel, een vaste trap naar de praktische bergvliering en een aparte berging waar de aansluiting voor de wasmachine en droger zit en de opstelplaats van de CV-ketel. Deze verdieping heeft twee prima slaapkamers (de slaapkamer aan de achterzijde heeft twee inbouwkasten) en nog een handige hobby-/werkkamer.
Tuin
Deze tussenwoning heeft een ruime beschutte voortuin met genoeg ruimte om eventueel (bak)fietsen te plaatsen. De goed verzorgde achtertuin is heerlijke zonnig door de ligging op het zuidwesten.
Bijzonderheden
- Gebruiksoppervlakte wonen 141 m²
- Overige inpandige ruimte 2 m²
- Gebouw gebonden buitenruimte 7 m²
- Externe bergruimte 0 m²
- Perceeloppervlakte 138 m²
- Bruto inhoud woning 507 m³
- Bouwjaar 1950
- Centrale ligging: scholen, winkels, sport- en recreatiemogelijkheden
- Energielabel C
- Volledig dubbelglas en spouwmuurisolatie
- Zonnige achtertuin op het zuidwesten
- Oplevering in overleg
Koopakte
- voor woningen ouder dan 30 jaar is de ouderdoms en materiaalclausule van toepassing
- voor woningen gebouwd voor 1993 is de asbestclausule van toepassing