Beschrijving
Midden in de charmante oude dorpskern van Oegstgeest, aan een rustig gedeelte van de Emmalaan, ligt deze twee-onder-een-kapwoning op een royaal perceel van maar liefst 393 m². De woning beschikt over meerdere slaapkamers, een badkamer, een vrijstaande garage en een eigen oprit.
Dankzij de gunstige hoekligging, de ruime kavel en de praktische indeling biedt dit huis volop mogelijkheden. Of u nu denkt aan uitbouwen, moderniseren of het realiseren van een levensloopbestendige woning — hier kunt u met visie en creativiteit een prachtig thuis creëren.
Deze woning ligt op loopafstand van winkels (zowel winkelgebied De Kempenaer als winkelcentrum Lange voort liggen om de hoek) en scholen. Station Leiden Centraal, het historische centrum van Leiden, diverse ziekenhuizen en sportfaciliteiten zijn op fietsafstand en de woning is gunstig gelegen ten opzichte van uitvalswegen naar Amsterdam/Schiphol en Den Haag (A4 / A44), de Kagerplassen en de stranden van Katwijk-Noordwijk-Wassenaar.
Indeling
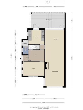
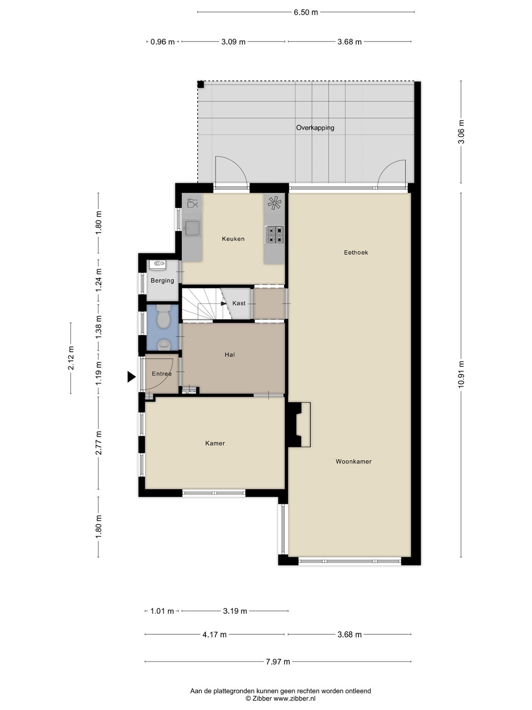
Bij binnenkomst aan de zijkant van de woning komt u, via een tochtportaal, in een ruime hal met visgraat parketvloer en aan de linkerzijde een toilet, verder is hier ook een zeer praktische verdiepte kelderkast. Via de centrale hal zijn alle vertrekken (zijkamer, woonkamer en keuken) te bereiken.
De zijkamer aan de voorzijde van de woning, ook met visgraat parketvloer, is een perfecte ruimte voor meerdere doeleinden, denk hierbij aan tv-kamer, werkkamer, hobbykamer, maar ook is deze kamer groot genoeg om als slaapkamer te fungeren. Voorheen was er ook een verbinding naar de woonkamer, die is weer eenvoudig terug te brengen.
De riante woonkamer beschikt over een visgraat parketvloer, openhaard en aan de achterzijde een deur naar de terrasoverkapping en de tuin. De royale keuken heeft een 4pits gasfornuis en een koel/vriescombinatie. Verder is er nog een ruime kast met de aansluiting voor de CV-ketel. Ook vanuit de keuken is de achtertuin te bereiken.
Eerste verdieping
Overloop, drie slaapkamers waarvan de achterkamer beschikt over een inbouwkast en de grote voorkamer heeft een inbouwkast en een deur naar het grote balkon. De badkamer is voorzien van een douche, wastafel met meubel en toilet. Vanuit de overloop is via een luik de bergvliering te bereiken.
Tuin
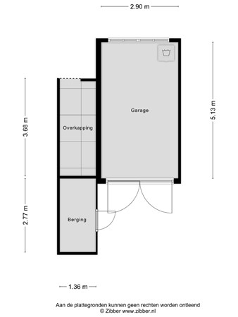
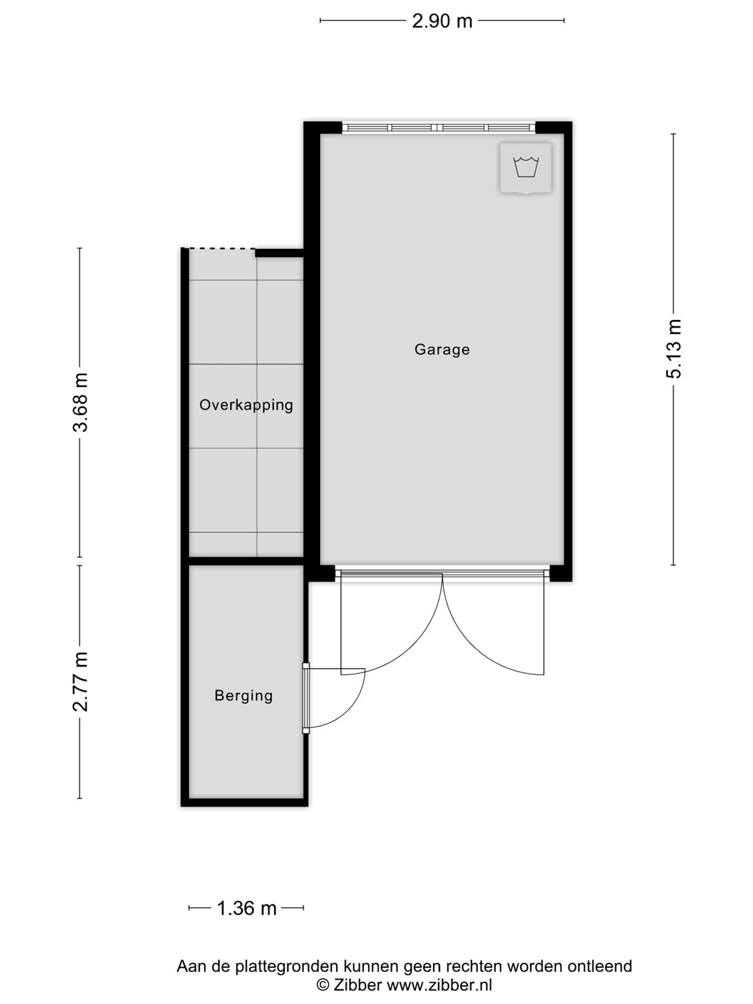
Aan de voorzijde is een groene voortuin waar u in de middag heerlijk kunt genieten van het zonnetje. Hier is ook voldoende ruimte om uw (bak-)fietsen te stallen. Langs de zijkant van de woning bevindt zich een royale oprit waar meerdere auto’s achter elkaar kunnen parkeren, terwijl de vrijstaande garage een beschutte plek biedt voor uw auto of extra opslag. Aan de garage is bovendien nog een praktisch schuurtje verbonden.
De ruime en verzorgde achtertuin vormt een heerlijke privéplek, met over de volledige breedte van de woning een overkapping waar u al vroeg in het seizoen buiten kunt zitten. Achter de garage bevindt zich nog een extra overkapping, ideaal voor het opbergen van tuinspullen. Met deze veelzijdige buitenruimte is er altijd een fijne plek om te ontspannen, te genieten en het buitenleven optimaal te ervaren.
Bijzonderheden
- Gebruiksoppervlakte wonen 123 m2
- Overige inpandige ruimte 8 m2
- Gebouw gebonden buitenruimte 27 m2
- Externe bergruimte 19 m2
- Bouwjaar 1921
- Ruim perceel (393 m²)
- Parkeergelegenheid op eigen terrein
- Vrijstaande garage
- Uitbouwmogelijkheden
- Mogelijkheid om een levensloopbestendige woning te creëren
- Oplevering in overleg
Koopakte
- ouderdoms- en materiaalclausule is van toepassing
- asbestclausule is van toepassing
- niet-zelfbewoningsclausule