Beschrijving
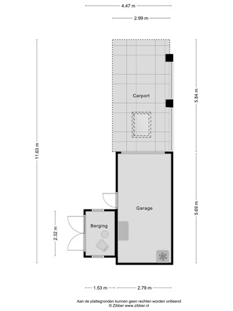
Heerlijk vrij gelegen, half vrijstaande semibungalow (bouwjaar 1991) op een riant perceel van 335 m² met o.a. 3 (slaap)kamers; lichte, hoge en tuingerichte L-vormige woon-/eetkamer; moderne keuken, ruime badkamer voorzien van inloopdouche en dubbel wastafel(meubel) met spiegelverlichting; separaat vrij hangend toilet met fontein; separate wasruimte, (ouder)slaapkamer met walk in closet op de begane grond; carport achter de elektrisch bedienbare poortdeuren, vrijstaande stenen garage (16 m²); parkeren op eigen terrein; houten berging en 12 zonnepanelen (energielabel B). Zeer aantrekkelijke indeling, levensloopbestendig, met wonen en slapen op de begane grond! De geschakelde woning is rustig gelegen aan een fietspad en een singel. Door het ruime perceel zijn er veel mogelijkheden voor eventueel verdere verruiming van de begane grond of op de eerste verdieping. En wat dacht u van de beschutte, zonnige en aan 3 zijden fraai aangelegde tuin met veel privacy en op afstand bedienbare zonwering!
Gelegen in een zeer kindvriendelijke en groene omgeving, met vrije ligging tegenover een fraaie groenstrook en waterpartijen. Dichtbij openbaar vervoer, (internationale) scholen, kinderopvang sportaccommodaties, recreatiegebied ‘De Klinkenbergerplas’ en De Kagerplassen, winkelcentra, Bio Science Park, LUMC, uitvalswegen richting Den Haag/Schiphol (A44/A4) en NS-stations Leiden-CS en Sassenheim. Het historische centrum van Leiden en de stranden van Katwijk-Noordwijk-Wassenaar liggen op fietsafstand.
Ieder jaar staat Oegstgeest in de Top 10 Beste Gemeenten om in te wonen en mocht zich in 2022 de beste woongemeente van Zuid-Holland noemen (bron: Elsevier Weekblad) en is de op één na groenste gemeente van Nederland
Indeling
Entree met luifel, hal met meterkast en wenteltrap naar de eerste verdieping. Lichte en hoge woon-eetkamer (mogelijkheid tot het realiseren van een vide of extra slaapkamer in de nok) met vloerverwarming, houten vloerdelen en grote raampartij aan de achterzijde met toegangsdeur naar de achtertuin en met extra (slaap)kamer met schuifdeur aan de voorzijde thans in gebruik als werkkamer. Doorloop naar de keuken met diverse inbouwapparatuur en deur naar de achtertuin. Toegang naar hal met separaat vrij hangend toilet met fontein, separate wasruimte, ruime tot aan het plafond betegelde badkamer met inloopdouche en dubbel wastafel(meubel) met spiegel(verlichting). Aan de achterzijde de royale en lichte master bedroom met walk in closet en uitzicht en toegang tot de heerlijke tuin.
Eerste verdieping
Kleine overloop met opstelplaats cv (Nefit 2016). Ruime en lichte slaapkamer met dakkapel en dakraam, inpandige bergruimte, netjes weggewerkte mechanische ventilatie unit plus extra bergruimte achter knieschotten. Op deze verdieping zijn nog allerlei uitbreidingsmogelijkheden mogelijk zoals extra (brede) dakkapel, extra slaap- en of badkamer.
Tuin
Aan de zijkant, via elektrisch bedienbare poortdeuren is er ruimte om twee auto’s op eigen terrein te parkeren (één onder de carport en één in vrijstaande stenen garage). Daarnaast bestaat er de mogelijkheid om een derde auto te parkeren voor de poortdeuren op openbaar terrein. Fraai aangelegde zonnige voor-, zij- en achtertuin voorzien van meerdere terrassen. Nu nog ommuurd met de mogelijkheid om nog meer zij-tuin bij de tuin te betrekken. De achtertuin beschikt over een ruime stenen garage (16 m²) en houten berging.
Bijzonderheden
- Bouwjaar 1991
- Gebruiksoppervlakte wonen 110 m²
- Gebouw gebonden buitenruimte 4 m²
- Externe bergruimte 20 m²
- Inhoud woning 390 m³
- Perceel 335 m²
- Centrale, kindvriendelijke ligging, in woonwijk nabij scholen, winkels en openbaar vervoer;
- Levensloopbestendige woning met riante tuin, carport en garage;
- 3 (slaap)kamers, hoge en lichte L-vorige woon-eetkamer, ruime keuken, ouderslaapkamer en badkamer;
- De woning kent nog uitbreidingsmogelijkheden bredere dakkapel, vide en/of extra badkamer/slaapkamer;
- Parkeergelegenheid op eigen terrein geschikt voor 2 auto’s (één voor de elektrisch bedienbare poortdeuren, één onder de carport en één in de garage), daarnaast bestaat er de mogelijkheid om een derde auto te parkeren voor de poortdeuren op openbaar terrein;
- 2 openbare parkeervakken met laadpalen voor een elektrische auto direct naast de woning;
- Volledig dubbelglas, dak-, vloer- en muurisolatie;
- 12 zonnepanelen;
- Energielabel B;
- Mechanische ventilatie in keuken en badkamer/sanitair;
- Nefit cv-ketel (2016);
- Bouwkundige keuring Perfectkeur d.d. 31 oktober 2025 aanwezig;
- Oplevering in overleg, kan spoedig
Koopakte
- voor woningen ouder dan 30 jaar is de ouderdoms- en materiaalclausule van toepassing
- voor woningen gebouwd voor 1993 is de asbestclausule van toepassing
- niet-zelfbewoningsclausule van toepassing