Beschrijving
Op een toplocatie in het centrum van Leiden, rustig gelegen, goed onderhouden en karakteristieke beneden-/bovenwoning (bouwjaar 1915) o.a. voorzien van moderne open (woon)keuken met kookeiland, riante L-vormige woon-eetkamer met vloerverwarming, aangrenzende werkkamer (eenvoudig om te bouwen naar een badkamer (want deze ruimte is hier al op voorbereid) of extra slaapkamer), dubbele openslaande deuren naar de achtertuin met overkapping ideaal gelegen op het zuidwesten (41 m²), tussenhal en separaat toilet met fonteintje gelegen op de begane grond en een (slaap)kamer met overloop op zowel de eerste als tweede verdieping gelegen aan de achterzijde.
De Valdezstraat is een zeer rustige zijstraat van de Schelpenkade en is eind 2025 helemaal opgeknapt (zowel fraaie bestrating als nieuwe riolering). U ervaart hier wel de lusten maar niet de lasten van de binnenstad. De woning ligt net buiten de singel, in de rustige en kindvriendelijke Tuinstadwijk, direct bij de gezellige winkelstraten de Heren- en Doezastraat met diverse speciaalzaken, restaurants, buurtsuper, kapsalons en dergelijke.
De binnenstad is eenvoudig lopend of fietsend te bereiken. Parken zoals het Plantsoen en polderpark Cronesteyn zijn ook dichtbij. Diverse scholen, kinderdagverblijven en speeltuinen zijn in de directe omgeving. In 5 minuten fietst u naar NS-station Leiden Lammenschans en binnen 10 minuten naar het NS-station Leiden Centraal. Uitvalswegen naar de N11, A4 en A44 zijn binnen enkele minuten te bereiken.
De historische binnenstad van Leiden is de op één na grootste van Nederland en staat bekend om de rijke geschiedenis met oude grachten, stadspoorten, maar liefst 88 bruggen, molens, kleine steegjes, hofjes, een burcht, Singelpark, musea en nog veel meer. Hier vindt u allerlei stedelijke voorzieningen in een compact gebied bij elkaar. En wist u dat Leiden op Amsterdam na het meeste water binnen haar poorten heeft stromen; in totaal 28 kilometer aan grachten en singels. Leiden stond niet voor niets op plek drie van aantrekkelijkste steden om te wonen (Bron: jaarlijks onderzoek ‘Atlas voor gemeenten’ van onderzoeksbureau Atlas Research mei 2023).
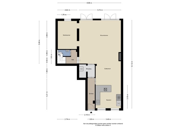
Indeling
Entree, hal met meterkast en berging. Toegangsdeur naar een ruime, diepe (ca 12 m), brede en tuingerichte woon-eetkamer met vloerverwarming. Aan de voorzijde bevindt zich een moderne L-vormige open keuken met kookeiland voorzien van diverse (inbouw)apparatuur, eetgedeelte in het midden, het woongedeelte aan de achterzijde met aangrenzend een werkkamer/thuiswerkplek (hier valt eenvoudig een badkamer te realiseren (aangezien de aansluitingen er al liggen) of er kan een extra slaapkamer van gemaakt worden) en openslaande deuren naar de achtertuin. De zonnige achtertuin ligt op het zuidwesten en heeft een gezellige overkapping. Via een tussenhal met separaat toilet met fonteintje gaat u binnendoor via vaste trappen naar een slaapkamer met overloop op zowel de eerste als tweede verdieping gelegen aan de achterzijde.
Bijzonderheden
- Bouwjaar 1915
- Gebruiksoppervlakte wonen 115 m²
- Overige inpandige ruimte 0 m²
- Gebouw gebonden buitenruimte 0 m²
- Externe bergruimte 0 m²
- Bruto inhoud woning 381 m³
- Energielabel C
- Aangename vloerverwarming in woon-eetkamer
- Cv-ketel Vaillant HR (2007)
- Beschermd stads- of dorpsgezicht
- Schilderwerk buitenzijde door erkend schildersbedrijf Roosendaal uit Zoeterwoude in april 2025
- De Valdezstraat is eind 2025 helemaal opgeknapt en voorzien van zowel fraaie bestrating als nieuwe riolering
- Kunststof kozijnen aan de achterzijde
- De benedenwoningen aan de Valdezstraat hadden van origine de badkamer op de begane grond; Valdezstraat 4 is voorbereid om (naar keuze) opnieuw de badkamer op de begane grond aan te brengen en zelfs de WC kan desgewenst bij de nieuwe badkamer betrokken worden. U zou er ook voor kunnen kiezen om evenals Valdezstraat 2 de badkamer op de tweede etage aan te brengen of op de eerste verdieping
- Zonnige achtertuin op het zuidwesten
- Op 31 mei 1991 is VvE Valdezstraat 4/4A te Leiden ingeschreven bij de KvK. De artikelen uit de splitsingsakte d.d. 31 mei 1991 zijn van toepassing maar tot op heden opgeschort geweest aangezien beide appartementsrechten in eigendom zijn van verkoper (verslagen vergaderingen Vve inclusief opgave onderhoudshistorie en indicatie planning aanwezig)
- Oplevering in overleg
Koopakte
- voor woningen ouder dan 30 jaar is de ouderdomsclausule van toepassing
- voor woningen gebouwd voor 1993 is de asbestclausule van toepassing