Beschrijving

Royaal, goed onderhouden en licht 3-kamer hoekappartement (voormalig 4-kamer), energielabel C, gelegen op de 3e woonlaag van het appartementencomplex “Parkzicht” met een grandioos vrij en panoramisch groen uitzicht op het park en het water vanuit de woon- en zijkamer, slaapkamers, keuken en vanaf de balkons. 

Aangenaam is ook dat het gebouw beschikt over een ruime centrale hal en lift, een afgesloten berging en ruim voldoende parkeergelegenheid voor de deur.  Publieke laadpalen voor elektrische auto’s bevinden zich naast het gebouw. 

Omdat de woning separaat op (met aparte toegangsdeur) op een hoek ligt, rechts naast de lift/trappenhuis, woont u hier heerlijk rustig met veel privacy en met als bonus een extra balkon aan de voorzijde met ochtendzon. Het appartement is o.a. voorzien van lichte woon-eetkamer, zijkamer, separaat vrij hangend toilet, 2 (slaap)kamers, moderne U-vormige keuken met alle denkbare inbouwapparatuur, moderne badkamer en twee balkons (zowel aan voorzijde op het oosten als middag-avondzon op het westen).

De ligging is ideaal te noemen in een rustige woonwijk; op slechts 5 minuten loopafstand van het uitgebreide winkelcentrum ‘Lange Voort’ (met kwaliteitswinkels als ‘De Fromagerie’ en slagerij Van der Zalm) en dicht bij de winkels en een variëteit aan horeca van de sfeervolle ‘De Kempenaerstraat’ en het landgoed Oud-Poelgeest. 
Diverse lagere- en middelbare scholen (Hofdijckschool, Gevers-Deutz Terweeschool en internationale school Rijnlands Lyceum), sport- en recreatiefaciliteiten (o.a. hockey, voetbal, tennis, golf, atletiek) en openbaar vervoer. Bio Science Park, Universiteit van Leiden, Akzo Nobel, ESTEC en Avery liggen op fietsafstand. Zeer gunstig gelegen ten opzichte van uitvalswegen (A4/A44) richting Amsterdam/Schiphol en Den Haag. Oegstgeest is omgeven door veel groen en water om te kunnen wandelen, watersporten in o.a. de Kagerplassen, recreatiegebied Klinkenbergerplas en Warmond. De zee is op fietsafstand en de stranden en duingebieden van Katwijk-Noordwijk-Wassenaar, maar ook Wandel- en Stadspark De Leidse Hout, het Centraal Station van Leiden, het gezellige historische centrum van Leiden en twee grote ziekenhuizen (LUMC/Alrijne) liggen nabij.

Ieder jaar staat Oegstgeest in de Top 10 Beste Gemeenten om in te wonen en mocht zich in 2022 de beste woongemeente van Zuid-Holland noemen (bron: Elsevier Weekblad) en is de op één na groenste gemeente van Nederland.

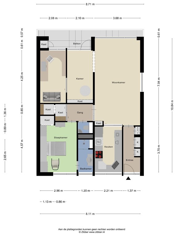
Indeling

Begane grond:
Centrale entree met brievenbussen en intercomsysteem inclusief toegang tot de berging (6 m²). Het appartement bereikt u via de trap en/of lift en via de eigen overdekte galerij.

3e verdieping:
Overkapte galerij, met eigen toegang, zonder buren (dus geen geloop langs uw ramen) waardoor u een extra zitgelegenheid heeft op het oosten (ochtendzon); entree; ruime hal met vernieuwde en uitgebreide meterkast (9 groepen inclusief 3-fase aansluiting t.b.v. inductie), intercom en garderobe; toegang tot de ruime en lichte woon-eetkamer met zijraam en veel prettige lichtinval mede dankzij de grote raampartijen aan de achterzijde. Aansluitend naast de woonkamer is er een ruime zijkamer met een toegangsdeur naar een overdekt balkon op het zonnige westen met bergkast, glazen boarding en elektrisch bedienbaar zonnescherm. Doorloop naar een (slaap)kamer aan de achterzijde thans in gebruik als werkkamer. Vanuit de woonkamer toegang tot een dichte, U-vormige keuken (2004) aan de voorzijde met diverse Bosch inbouwapparatuur (o.a. vaatwasser, oven, magnetron, inductiekookplaat, koel-/vriescombinatie en afzuigkap) en opstelplaats voor zowel wasmachine als wasdroger; gang met modern vrij hangend toilet met fonteintje en ruime bergkast; ruime (hoofd)slaapkamer aan de voorzijde voorzien van inbouw(kleding)kast; vanuit deze slaapkamer is de moderne tot aan het plafond betegelde badkamer met douchecabine met zitplateau, handdoekradiator en wastafel(meubel) met spiegel te bereiken. Nagenoeg de gehele woning is voorzien van een doorgelegde laminaatvloer met houtlook.

Bijzonderheden

- Woonoppervlakte 83 m² 
- Overige inpandige ruimte 0,40 m² 
- Gebouw gebonden buitenruimte 8 m² 
- Externe bergruimte 6 m² 
- Inhoud woning 276 m³
- Bouwjaar 1969
- Energielabel C
- Centrale ligging nabij vele voorzieningen
- Volledig HR dubbelglas en muurisolatie
- Achtergevel in 2024 geïsoleerd
- Onderhoudsarme kunststof kozijnen
- Dak van het appartementencomplex in 2024 vervangen
- Ruim en overdekt balkon aan de achterzijde op het westen (middag-avondzon) en overkapte galerij aan de voorzijde op het oosten (ochtendzon)  
- Lichte woon-eetkamer, 2 (slaap)kamers, zijkamer
- Het appartement heeft een vrij en panoramisch groen uitzicht en biedt veel privacy
- Elektrisch bedienbare buitenzonwering
- Mechanische ventilatie in badkamer
- Voldoende (gratis) parkeergelegenheid voor de deur en publieke laadpalen naast gebouw
- Verwarming d.m.v. blokverwarming
- Radiatoren met thermostaten met digitaal afleesbare warmtemeters
- VvE-kosten € 374,90 inclusief € 150,- voorschot stookkosten) 
- Oplevering in overleg, kan spoedig

Koopakte
- voor woningen ouder dan 30 jaar is de ouderdoms- en materiaalclausule van toepassing
- voor woningen gebouwd voor 1993 is de asbestclausule van toepassing
- niet-zelfbewoningsclausule van toepassing

Kenmerken