Beschrijving

Op een toplocatie in centrum van Leiden, rustig gelegen, goed onderhouden en karakteristieke bovenwoning (bouwjaar 1915) op de eerste en tweede verdieping o.a. voorzien van L-vormige 13 meter diepe woon-eetkamer, 3 ruime slaapkamers, 2 badkamers, 2 wc's en open (woon)keuken. 

De Valdezstraat is een zeer rustige zijstraat van de Schelpenkade en wordt eind oktober 2025 helemaal opgeknapt (zowel bestrating als nieuwe riolering). U ervaart hier wel de lusten maar niet de lasten van de binnenstad. De woning ligt net buiten de singel, in de rustige en kindvriendelijke Tuinstadwijk, direct bij de gezellige winkelstraten de Heren- en Doezastraat met diverse speciaalzaken, restaurants, buurtsuper, kapsalons en dergelijke. 

De binnenstad is eenvoudig lopend of fietsend te bereiken. Parken zoals het Plantsoen en polderpark Cronesteyn zijn ook dichtbij. Diverse scholen, kinderdagverblijven en speeltuinen zijn in de directe omgeving. In 5 minuten fietst u naar NS-station Leiden Lammenschans en binnen 10 minuten naar het NS-station Leiden Centraal. Uitvalswegen naar de N11, A4 en A44 zijn binnen enkele minuten te bereiken.

De historische binnenstad van Leiden is de op één na grootste van Nederland en staat bekend om de rijke geschiedenis met oude grachten, stadspoorten, maar liefst 88 bruggen, molens, kleine steegjes, hofjes, een burcht, Singelpark, musea en nog veel meer. Hier vindt u allerlei stedelijke voorzieningen in een compact gebied bij elkaar. En wist u dat Leiden op Amsterdam na het meeste water binnen haar poorten heeft stromen; in totaal 28 kilometer aan grachten en singels. Leiden stond niet voor niets op plek drie van aantrekkelijkste steden om te wonen (Bron: jaarlijks onderzoek ‘Atlas voor gemeenten’ van onderzoeksbureau Atlas Research mei 2023)

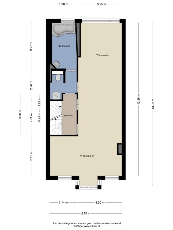
Indeling

Hal met meterkast en trapopgang naar de eerste verdieping.

Eerste verdieping

Overloop; separaat toilet; badkamer met ligbad en wastafel; riante, brede en diepe (ca. 13 m) multifunctionele ruimte momenteel in gebruik als slaapkamer met fraai erkerraam aan de voorzijde, een tussenhal en een ruime slaapkamer aan de achterzijde maar u kan hier eenvoudig één grote woon-eetkamer realiseren.

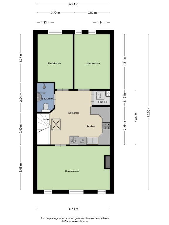
Tweede verdieping

Via een vaste trap komt u terecht in de (woon)keuken met toegang tot alle vertrekken waaronder 3 ruime (slaap)kamers, tweede badkamer met wc, inloopdouche, designradiator en wastafel en separate opstelplaats voor wasapparatuur en c.v. ketel. Vanuit de woonkeuken eveneens toegang tot het dak met fenomenaal uitzicht over Leiden.

Bijzonderheden

- Bouwjaar 1915
- Gebruiksoppervlakte wonen 143 m²
- Overige inpandige ruimte 0 m²
- Gebouw gebonden buitenruimte 0 m²
- Externe bergruimte 0 m²
- Bruto inhoud woning 472 m³
- Energielabel C
- Grotendeels dubbelglas
- Cv-ketel Daalderop Base HR (2016)
- Beschermd stads- of dorpsgezicht
- Schilderwerk buitenzijde door erkend schildersbedrijf Roosendaal uit Zoeterwoude in april 2025
- Platte dak volledig vernieuwd, standaard onderhoud, +/- 10 jaar geleden
- Parkeervergunningen en betaald parkeren
- Op 31 mei 1991 is VvE Valdezstraat 4/4A te Leiden ingeschreven bij de KvK. De artikelen uit de splitsingsakte d.d. 31 mei 1991 zijn van toepassing maar tot op heden opgeschort geweest aangezien beide appartementsrechten in eigendom zijn van verkoper (verslagen vergaderingen Vve inclusief opgave onderhoudshistorie en indicatie planning aanwezig)
- Eind oktober 2025 wordt de Valdezstraat opgeknapt; zowel bestrating als nieuwe riolering 
- Oplevering in overleg

Koopakte
-	voor woningen ouder dan 30 jaar is de ouderdomsclausule van toepassing
-	voor woningen gebouwd voor 1993 is de asbestclausule van toepassing

Kenmerken