Beschrijving

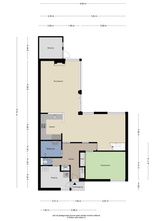
Bent u op zoek naar een riante (levensloopbestendige) semibungalow (140 m² gebruiksoppervlakte wonen)? Kom dan kijken naar deze extra ruime (extra verdieping) praktisch (geschakelde) bungalow (bouwjaar 1976) met 11 meter diepe en beschutte L-vormige (patio)tuin met veel privacy gelegen op het zuiden. De woning is o.a. voorzien van een ruime hal, ruime inpandige berging met opstelplaats voor wasapparatuur, moderne badkamer met inloopdouche, separaat toilet, lichte L-vormige tuingerichte woon-eetkamer met open haard en nieuwe schuifpui (5 maanden oud), L-vormige open keuken met (zit)bar en ruime slaapkamer op de begane grond. In tegenstelling tot veel andere bungalows in de straat beschikt deze woning ook nog over 2 (slaap)kamers en een 2e toilet op de eerste verdieping.

Rustig gelegen in de mooie groene Merenwijk. Een zeer aantrekkelijke woning door de ligging, de ruimte in het huis en de nabijheid van winkelcentrum, wijkpark, sport- en recreatiegebied en openbaar (bus) vervoer. Centraal station Leiden, de historische binnenstad en ziekenhuizen zijn op ca. 12 minuten fietsen te bereiken.

De historische binnenstad van Leiden is de op één na grootste van Nederland en staat bekend om de rijke geschiedenis met oude grachten, stadspoorten, maar liefst 88 bruggen, molens, kleine steegjes, hofjes, een burcht, Singelpark, musea en nog veel meer. Hier vindt u allerlei stedelijke voorzieningen in een compact gebied bij elkaar. En wist u dat Leiden op Amsterdam na het meeste water binnen haar poorten heeft stromen; in totaal 28 kilometer aan grachten en singels. Leiden stond niet voor niets op plek drie van aantrekkelijkste steden om te wonen (Bron: jaarlijks onderzoek ‘Atlas voor gemeenten’ van onderzoeksbureau Atlas Research mei 2023).

Indeling

Voortuin; overdekte entree; ruime hal met 2 glas-in-lood ramen, garderobe- en meterkast, opstelplaats combiketel (2018), separaat vrij hangend toilet met fontein, ruime inpandige berging aan de voorzijde voorzien van elektra, radiator, opstelplaats voor wasapparatuur en buitendeur; modern tot aan het plafond betegelde badkamer met inloopdouche, glazen wand, handdoekenradiator, wastafel en spiegel(verlichting); ruime (slaap)kamer aan de voorzijde voorzien van inbouw- en losse kledingkast; riante en lichte (dankzij de vele raampartijen) tuingerichte L-vormige woon-eetkamer met houten vloerdelen, hout gestookte open haard en L-vormige open keuken voorzien van diverse inbouwapparatuur, (zit)bar en met veel werk- en opbergruimte. Via de vernieuwde schuifpui (5 maanden geleden geïnstalleerd) toegang tot de beschutte, onderhoudsarme L-vormige, 11 meter diepe, achtertuin ideaal gelegen op het zonnige zuiden met handige houten berging.

Eerste verdieping

Vanuit het eetgedeelte van de woonkamer via een vaste trap toegang tot de overloop van de 1e verdieping. Hier treft u het 2e separate toilet met fontein aan en twee lichte en ruime (slaap)kamers (waarvan één met wastafelmeubel).

Bijzonderheden

- Bouwjaar 1976
- Gebruiksoppervlakte wonen 140 m²
- Overige inpandige ruimte 0 m²
- Gebouw gebonden buitenruimte 2 m²
- Externe bergruimte 7 m²
- Inhoud woning 495 m³ 
- Perceeloppervlakte 208 m²
- Rustige, groene en centrale ligging in een kindvriendelijke omgeving 
- Levensloopbestendig wonen met een slaapkamer en badkamer op de begane grond plus 2 (slaap)kamer en separaat toilet op de 1e verdieping
- Beschutte en 11 meter diepe achtertuin op het zuiden
- Inpandige berging en buitenberging 
- Energielabel C
- Muur-, en vloerisolatie en volledig voorzien van dubbelglas
- Bouwkundige keuring en asbestscan Perfectkeur d.d. 18 november 2025 aanwezig
- Veel zaken blijven achter, zie daarvoor de lijst van zaken
- Oplevering in overleg, kan spoedig

In de koopakte zullen wij volgende clausules laten opnemen:
- voor woningen ouder dan 30 jaar is de ouderdoms- en materiaalclausule van toepassing
- voor woningen gebouwd voor 1993 is de asbestclausule van toepassing
- niet-zelfbewoningsclausule van toepassing

Kenmerken