Beschrijving

In het historische centrum van Leiden - op een unieke en levendige locatie – vind je deze fijne maisonnette  (90 m²) met fantastisch zicht op de Breestraat en aan de achterzijde een ruim dakterras. Je woont hier aan één van de meest bekende straten van Leiden, midden in het centrum. 

De straat bestaat uit vele historische panden én er is nauwelijks autoverkeer. Alles wat Leiden zo aantrekkelijk maakt, is vanaf deze locatie op loopafstand te bereiken. Een bushalte is heel dichtbij en naar Leiden CS fiets je binnen 5 minuten.

Indeling

Begane grond:
Centrale afgesloten entree, trapopgang naar de derde verdieping. 

Derde verdieping:
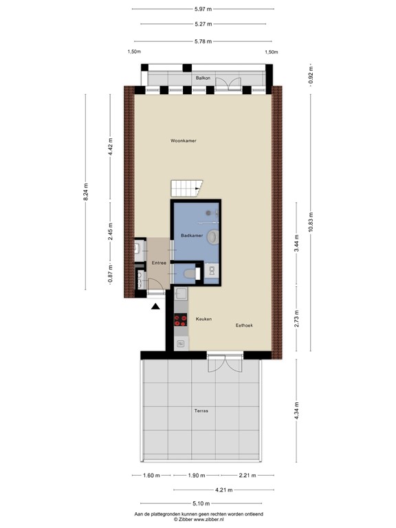
Entree in de hal die- via een kleine gang- in open verbinding staat met de woonkamer. Direct bij de voordeur bevindt zich het separaat toilet en de royale badkamer met inloopdouche en wastafel, alsmede de meterkast en kast voor de cv-ketel. In de badkamer zitten ook de aansluitingen voor de wasmachine en droger. De woonkamer is ruim opgezet en en heeft een fantastisch uitzicht op de Breestraat. Hier zijn ook openslaande deuren naar een inpandig balkon. De keuken zit aan de achterzijde en is voorzien van een koelkast met vriesvak, inductiekookplaat, afzuigkap, vaatwasser en combimagnetron. Vanuit de keuken bereikt u het riante dakterras, waar u in alle rust kunt kijken over het prachtige historische centrum van Leiden.

Vierde verdieping:
Via de trap in de woonkamer betreedt u de ruime en lichte eerste slaapkamer met de zichtbare balken wat een heel karakteristiek gevoel geeft. De tweede slaapkamer bereikt u vanaf de overloop. 

De woning wordt geheel gemeubileerd aangeboden.

Bijzonderheden

- Gebruiksoppervlakte wonen 90 m2
- Overige inpandige ruimte 0 m2
- Gebouw gebonden buitenruimte 25 m2
- Externe bergruimte 0 m2
- Energielabel E
- Centraal gelegen, midden in het centrum van Leiden
- Riant dakterras
- VvE-kosten € 258,54 per maand 
- Wordt geheel gemeubileerd opgeleverd
- Oplevering in overleg (kan snel) 

Koopakte
- ouderdoms- en materiaalclausule is van toepassing
- asbestclausule is van toepassing
- niet-zelfbewoningsclausule van toepassing
- er is geen lijst van zaken aanwezig
- projectnotaris Van Buttingha Wichers Notarissen

Kenmerken